Komornik Sądowy przy Sądzie Rejonowym w Kielcach Dagmara Bedla informuje o pierwszej licytacji nieruchomości należącej do dłużnika: Andrzej Gołuch.
Licytacja odbędzie się w dniu 20-03-2026r. o godzinie 08:00 w budynku Sądu Rejonowego w Kielcach, przy ul. Warszawskiej 44, w sali rozpraw nr XVIII.
Przedmiotem licytacji jest lokal mieszkalny o numerze 1, stanowiący odrębną nieruchomość, położony w Kielcach przy ul. Majora Piwnika "Ponuerego" 30.
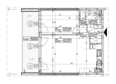
Lokal o powierzchni użytkowej 105,60m2 znajduje się w trzykondygnacyjnym, w pełni podpiwniczonym budynku mieszkalnym wielorodzinnym, zlokalizowanym na działce nr 112 w obrębie 0005 Kielce.
Budynek wyposażony jest w instalacje: wodociągową, kanalizację sanitarną, kanalizację wód opadowych, gazową oraz elektryczną.
Według zapisów księgi wieczystej, lokal mieszkalny nr 1 usytuowany jest na I piętrze budynku. Składa się z klatki schodowej, dwóch pomieszczeń gospodarczych, dwóch przedsionków, kotłowni, garażu, łazienki, kuchni oraz dwóch pokoi.
UWAGA: W zapisie operatu szacunkowego, dokonanym przez biegłego, zaznaczono, że stan faktyczny położenia lokalu w budynku i rozkład pomieszczeń różnią się od opisu zawartego w księdze wieczystej.

Suma oszacowania nieruchomości wynosi 542.339,00 zł.
Cena wywoławcza ustalona została na 3/4 sumy oszacowania, co stanowi 406.754,25 zł.
Licytant przystępujący do przetargu zobowiązany jest do złożenia rękojmi w wysokości jednej dziesiątej sumy oszacowania, czyli 54.233,90 zł.
Rękojmię należy złożyć w gotówce lub w formie książeczki oszczędnościowej banków uprawnionych, zaopatrzonej w upoważnienie właściciela do wypłaty całego wkładu zgodnie z prawomocnym postanowieniem sądu o utracie rękojmi.
Rękojmię należy uiścić najpóźniej w dniu poprzedzającym przetarg, tj. do 19.03.2026 r.
Pełnomocnictwo do udziału w przetargu powinno być stwierdzone dokumentem z podpisem urzędowo poświadczonym.
Zgodnie z art. 976 §1 Kodeksu postępowania cywilnego, w przetargu nie mogą uczestniczyć osoby, które mogą nabyć nieruchomość tylko za zezwoleniem organu państwowego, a takiego zezwolenia nie przedstawiły, oraz inne osoby wymienione w tym artykule.
W ciągu dwóch ostatnich tygodni przed licytacją istnieje możliwość oglądania nieruchomości w następujących terminach:
Można również zapoznać się z odpisem protokołu oszacowania nieruchomości oraz operatem szacunkowym biegłego sądowego w kancelarii komornika.

Prawa osób trzecich nie będą stanowiły przeszkody do licytacji i przysądzenia własności na rzecz nabywcy bez zastrzeżeń, pod warunkiem, że osoby te przed rozpoczęciem przetargu nie złożą dowodu na wniesienie powództwa o zwolnienie nieruchomości lub przedmiotów razem z nią zajętych od egzekucji i nie uzyskają w tym zakresie orzeczenia wstrzymującego egzekucję.

tags: #andrzej #goluch #komornik #nr #konta